Alles wat je nog niet wist over de toekomstige Apple Store in Haarlem
De afgelopen weken regende het geruchten over een mogelijke Apple Store in Haarlem. Ondanks dat wij eerst dachten dat Haarlemmermeer (Schiphol) een logischere locatie voor een Apple Store was, bleven de tips en geruchten doorgaan. Het is 99,99% zeker, die Apple Store in Haarlem komt er.
Na een week grondig onderzoek te hebben gedaan presenteren wij je vandaag alles wat je nog niet wist over de toekomstige Apple Store in Haarlem. Omdat we je geen detail willen besparen zijn alle foto’s in dit artikel klikbaar en in hoge resolutie te bekijken.
De store wordt 750m2 groot, maar vooral diep
De Apple Store zal zich aan de Grote Houtstraat in Haarlem vestigen, op nummer 99. Aan de hand van bouwtekeningen hebben wij berekend dat de store 750 m2 groot zal worden. Momenteel is het pand in verbouwing, OMT ging een kijkje nemen naar de huidige staat van het pand. Wat we in Haarlem aantroffen was een praktisch hermetisch afgesloten bouwplaats. Op dat moment (11:50 in de ochtend) was er niemand aanwezig op de bouwplaats. Tijd voor foto’s:
Het pand lijkt vrij klein en de voorkant is niet zo boeiend om te zien. Een aardige bouwvakker die aan het werk was bij een naastgelegen pand was echter zo vriendelijk om ons door zijn bouwplaats naar de achterkant van de potentiële Apple Store te loodsen. Aan de achterkant is pas goed te zien hoe enorm diep het pand vooral is.
Mogelijk twee verdiepingen
Zoals op bovenstaande foto te zien is, bestaat het pand uit meerdere lagen. De onderste laag is voor een winkel, de bovenste voor appartementen. Uit research van OMT blijkt echter dat het niet uit te sluiten valt dat de bovenste verdieping ook gebruikt zal worden voor de Apple Store. De appartementen boven de winkel waren gekraakt en zijn er momenteel zo goed als uitgesloopt. Volgens bronnen die wij spraken lopen er momenteel een aantal vergunningsaanvragen die te maken hebben met het verwijderen van de bestaande bovenbouw.
Het personeel is gescout
Apple is druk bezig met personeel regelen voor de Apple Store in Haarlem. Diverse sollicitanten zijn gebeld door een recruiters van het bedrijf. Voor sollicitanten die door de de initiële selectieronde zijn wordt ‘in de lente’ een event georganiseerd waar de potentiële medewerkers zich kunnen presenteren. OMT heeft contact met een aantal van deze sollicitanten, we houden je hierover op de hoogte.
De projectontwikkelaar en Architect zwijgen
De projectontwikkelaar die op de bouwvergunningen staat is Coltex Retail B.V. Zij zijn eigenaar van de modewinkel-formules Didi, Superstar en Steps. Een woordvoerder van Coltex wilde ons niet vertellen voor wie zij werken, wel wist de projectontwikkelaar te melden dat het in ieder geval niet een van de eigen winkelfomules is.
De architect is Dam & Partners uit Amsterdam. Een groot en gerenommeerd bureau. Zoals we verwacht hadden houdt iedereen bij het architectenbureau de kaken stijf op elkaar. Wij hebben de hoofd-architect van het project ‘Grote Houtstaat 99’ echter gesproken en uitgenodigd om te vertellen hoe het is om voor Apple te werken. Onze tweewekelijkse talkshow OMT LIVE lijkt ons een geschikte plaats voor dit gesprek. De uitnodiging staat overigens nog open.
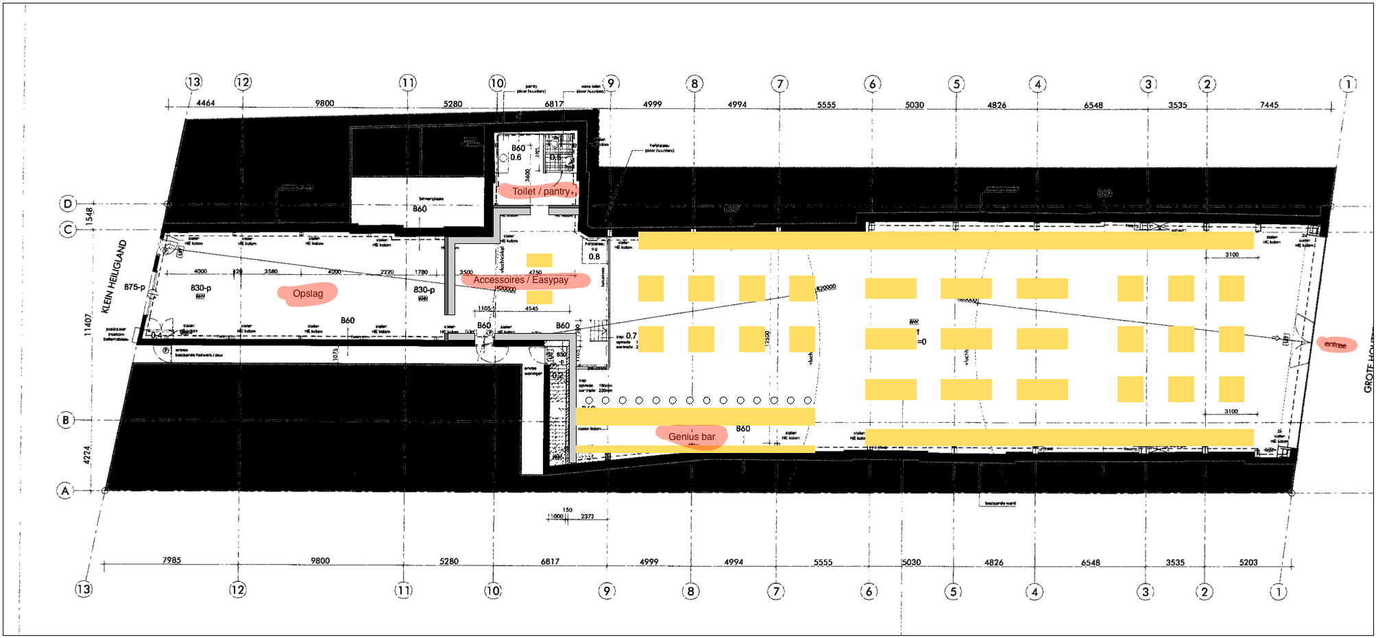
Lest best: En dit zijn de bouwtekeningen en inrichting
Wij hebben de hand weten te leggen op de bouwtekeningen van het pand waar de Apple Store in Haarlem in zal komen. OMT’s redacteur Jan David is in het dagelijks leven architect en heeft geprobeerd op basis van het interieur van reeds bestaande Apple Stores invulling aan bouwtekeningen te geven. Hieronder zie je een indicatieve schets van de indeling. (Klik op de afbeelding om alle details in hoge resolutie te zien)
Heb je tips, opmerkingen of aanvullende inside-informatie over de nieuwe Apple Store in Haarlem? Deze zijn welkom op het e-mail adres [email protected]. Je kan via deze pagina ook een anonieme tip insturen.
:format(jpeg):background_color(fff)/https%3A%2F%2Fwww.want.nl%2Fwp-content%2Fuploads%2F2013%2F03%2F2013-02-28-11.47.29.jpg)
:format(jpeg):background_color(fff)/https%3A%2F%2Fwww.want.nl%2Fwp-content%2Fuploads%2F2013%2F03%2F2013-02-28-11.40.18.jpg)
:format(jpeg):background_color(fff)/https%3A%2F%2Fwww.want.nl%2Fwp-content%2Fuploads%2F2013%2F03%2F99999999999.jpg)
:format(jpeg):background_color(fff)/https%3A%2F%2Fwww.want.nl%2Fwp-content%2Fuploads%2F2013%2F03%2Fbouwtekening-applestore-haarlem.png)